连云港品牌餐饮空间设计思维与技巧

发布来源:群诺品牌顾问

发布时间:28-Oct-2021

浏览次数: 次浏览

在创作空间设计时,要掌握以下几个方面的思维和技巧。以餐饮空间设计为例,需要考虑到从空间动线、色彩、材质、到灯光等一系列问题。

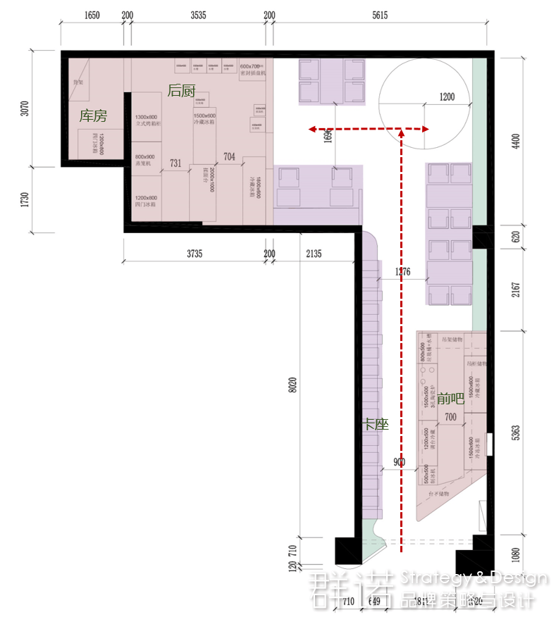
#  空间动线 

 

空间动线,通俗来讲就是平面布局,在餐饮空间设计中是重中之重。

平面布局远远不只要求完成空间分布,而是要解决餐饮空间设计整体的经营区域比例问题,包括前台,大厅,后厨,卫生间、库房等多个功能区域的比例关系。
一个良好的餐饮空间设计的动线布局,要考虑到包括用户进店到落座所经区域,服务员的送餐、收餐路线,厨师的操作半径,收银及等位区域等的设置。



餐饮空间设计动线 餐饮空间设计动线参考图


一个好的餐饮空间设计,应通过梳理消费者的用餐环节,给出让食客获得舒适用餐体验的合理空间布局。
这样的餐饮空间设计不仅有助于留存客户、提高效率,更能最大化利用空间,从而帮助企业在不变甚至有限的空间资源下,获得最高的经济效益。

#  色彩 

 

餐饮空间设计中的色彩,需要根据品牌特性和消费人群来进行分析和调整。
比如快餐类,一般都会采用高饱和高对比的色彩;而火锅类,一般都会采用带有强烈品类属性的红色,能第一时间向消费者传达品类信息;在中餐餐饮中,色彩应用就较平缓,多用一些木作、相对中式的色调。

 

成都餐饮空间设计快餐类餐饮空间设计色彩应用


#  灯光 

 

在餐饮空间设计中,需要把握的是:不同的灯光会营造出完全不同的心理感受。

 

餐饮空间设计灯光分析餐饮空间设计灯光分析图


拿酒吧来举例,研究表明,在暗环境的氛围中,客人的购酒量会比明亮环境增加40%,因此酒吧灯光整体平均照度往往在300LM以下。
而快餐类空间则需要保持整体平均照度800LM左右,营造宽敞明亮,舒适整洁的用餐氛围。

 

酒吧类餐饮空间设计灯光酒吧类餐饮空间设计灯光应用


#  材质


餐饮空间设计,除开定位高端或定位重型中餐的品牌,一般都考虑在3-5年需要进行形象升级和产业调整,所以一般不建议使用特别高端的材料。这样便于控制投资额度,缩短回本周期,帮助企业早日进入盈利期。
餐饮空间设计实际的材质运用,事实上也是根据品牌定位来确定。比如火锅类餐饮空间的材料使用往往会更接地气一些,因此砖、水泥等粗犷材质使用更多。

 

火锅类餐饮空间设计材质参考火锅类餐饮空间设计材质应用

 

不仅是餐饮空间设计,所有空间设计都应该遵从以上规律,才能有效提高空间的有效性和实用性。

 

连云港网络公司 | 高端网站建设

TAG:
相关资讯
多一份参考,总有益处
联系群诺,免费获得专属定制《策划方案》及网站建设、网站设计、网站制作报价
咨询相关问题或预约面谈,可以通过以下方式与我们联系
大客户专线188-6135-8889

连云港网络公司 | 高端网站建设

提交需求
热线
微信扫码咨询
连云港网络公司 | 高端网站建设
电话咨询
微信
连云港网络公司 | 高端网站建设
业务热线
提交需求
官方微信
连云港网络公司 | 高端网站建设
准备好开始了吗,
那就与我们取得联系吧
188-6135-8889
有更多服务咨询,请联系我们
请填写您的需求
您希望我们为您提供什么服务呢
您的预算